Nowe Budownictwo | Wola | Blisko Centrum

Mieszkanie na sprzedaż
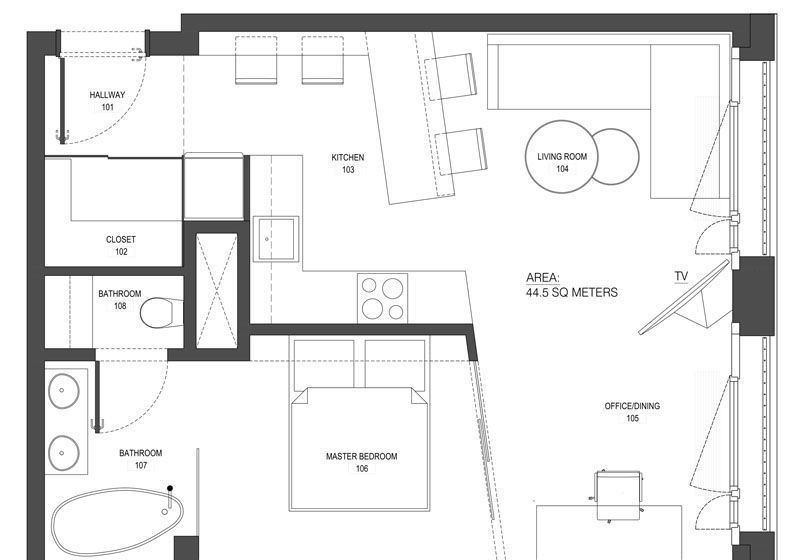
1 275 000,00 PLN , Pow. 44,50 m2
Drukuj ofertę
Drukuj ofertę
Typ nieruchomości:
Mieszkanie
Powierzchnia:
44,50 m2
Typ transakcji:
sprzedaż
Liczba pokoi:
2
Lokalizacja:
Warszawa Wola , Krochmalna
Rok budowy:
2020
Piętro:
0 na 6
Numer oferty:
PEMS-761489
Cena za m2:
28 651,69 PLN
Biuro nieruchomości Pure Estates ma przyjemność zaprezentować mieszkanie na warszawskiej Woli.

Mieszkanie o powierzchni:
44.50 m2 znajduje się na parterze piętrze i składa się z:
- Salonu z aneksem kuchennym 
- Łazienki 
- Toalety 
- Sypialni 
- Holu
- Garderoby

Mieszkanie wykończone jest w wysokim standardzie i znajduje się na bardzo atrakcyjnym, nowoczesnym osiedlu zamkniętym. Położone na parterze, oferuje komfort i wygodę codziennego użytkowania. Lokal idealnie sprawdzi się zarówno pod inwestycję, jak i dla singla lub pary. Atutem mieszkania jest balkon paryski, który dodaje wnętrzu lekkości i elegancji. Osiedle jest zielone, zadbane i zaprojektowane z myślą o komforcie mieszkańców. Układ pomieszczeń jest doskonale przemyślany i funkcjonalny. Lokalizacja zapewnia szybki dojazd do centrum Warszawy — około 13 minut samochodem. Komunikacją miejską dojazd zajmuje około 18 minut. Zaledwie 10 minut spacerem dzieli nieruchomość od Fabryki Norblina. W podobnej odległości znajduje się również Muzeum Powstania Warszawskiego, wpisujące się w historyczny i kulturalny charakter tej części miasta.

Serdecznie zapraszam do kontaktu oraz prezentacji nieruchomości w dogodnym dla Państwa terminie.

 
Nieprawidłowy adres E-mail