| Blisko Metra | Piwnica | Przeszklona Loggia|

Mieszkanie na sprzedaż
890 000,00 PLN , Pow. 62,70 m2
Drukuj ofertę
Drukuj ofertę
Typ nieruchomości:
Mieszkanie
Powierzchnia:
62,70 m2
Typ transakcji:
sprzedaż
Liczba pokoi:
3
Lokalizacja:
Warszawa Ursynów , Benedykta Dybowskiego
Rok budowy:
1978
Piętro:
1 na 10
Numer oferty:
PEMS-513884
Cena za m2:
14 194,58 PLN
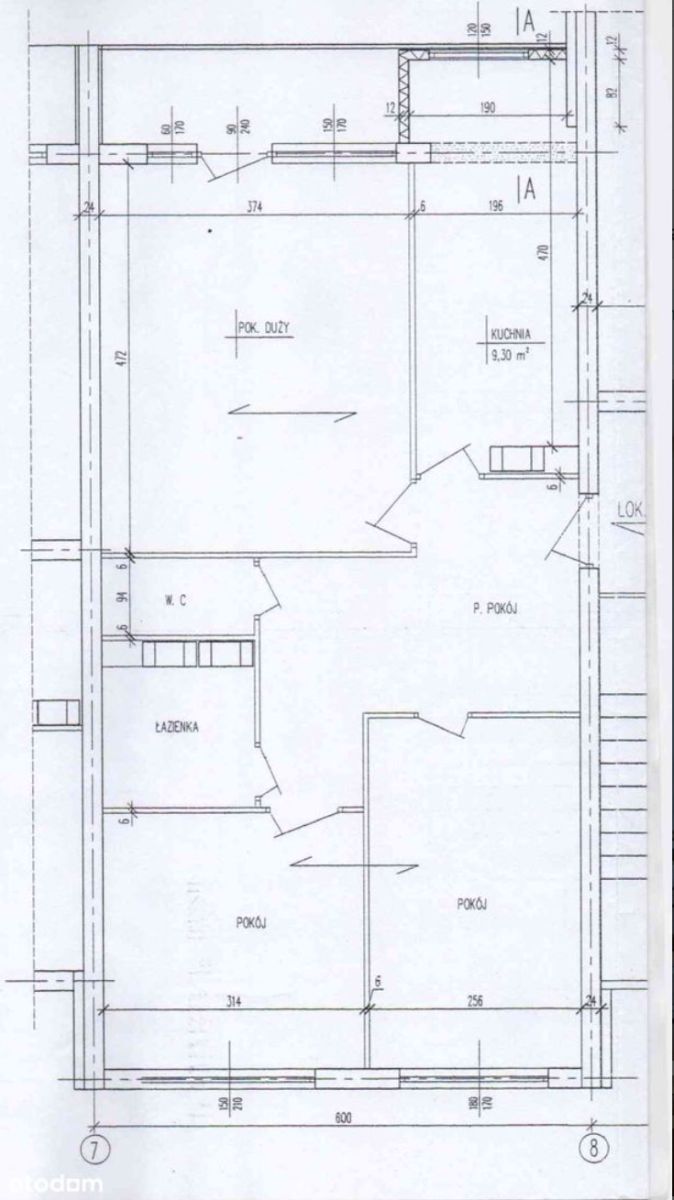
Biuro nieruchomości Pure Estates ma przyjemność zaprezentować przestronne, jasne mieszkanie zlokalizowane na warszawskim Ursynowie. Lokal znajduje się na pierwszym piętrze budynku wyposażonego w windę.

Mieszkanie o powierzchni 62,70 m² składa się z:

- przestronnego salonu,
 -sypialni,
- dodatkowego pokoju,
- oddzielnej, widnej kuchni,
- łazienki,
- oddzielnego WC,
- dużego korytarza z zabudowaną szafą wnękową,
- przeszklonej loggii.

Do mieszkania przynależy piwnica. Dodatkowo istnieje możliwość korzystania ze wspólnej komórki lokatorskiej.

Nieruchomość położona jest ok. 700 metrów od stacji metra Stokłosy / Imielin, a najbliższe przystanki autobusowe znajdują się zaledwie 120 metrów od budynku.

Wjazd na teren osiedla jest możliwy wyłącznie dla osób uprawnionych - teren zabezpieczony jest szlabanem sterowanym zdalnie. Miejsca parkingowe dostępne są zarówno na parkingu ogólnodostępnym, jak i na zamkniętym, strzeżonym.

Proces regulacji gruntów został zakończony, dzięki czemu możliwe jest założenie księgi wieczystej oraz sfinansowanie zakupu nieruchomości kredytem hipotecznym.


Mieszkanie jest dwustronne, o ekspozycji wschód-zachód, co zapewnia świetne doświetlenie. Wyróżnia się dużymi oknami oraz przestronną, przeszkloną loggią z widokiem na zielone patio.

W najbliższej okolicy znajdują się liczne sklepy, centra handlowe, punkty usługowe, centrum kultury, restauracje, a także przychodnie i szpital. Dodatkowym atutem jest pełna infrastruktura edukacyjna: żłobki, przedszkola, szkoły podstawowe, licea oraz uczelnie wyższe. W niedalekiej odległości zlokalizowane są również tereny zielone, m.in. Las Kabacki.

Serdecznie zapraszam do kontaktu oraz na prezentację nieruchomości w dogodnym dla Państwa terminie.
Nieprawidłowy adres E-mail