Ursus | 3 pokoje | do wprowadzenia | jasne

Mieszkanie na sprzedaż
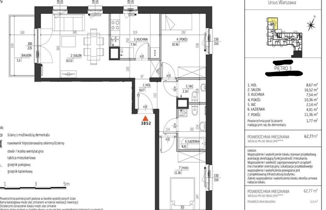
1 250 000,00 PLN , Pow. 63 m2
Drukuj ofertę
Drukuj ofertę
Typ nieruchomości:
Mieszkanie
Powierzchnia:
63 m2
Typ transakcji:
sprzedaż
Liczba pokoi:
3
Lokalizacja:
Warszawa Ursus , Edwarda Habicha
Rok budowy:
2023
Piętro:
3 na 7
Numer oferty:
PEMS-354705
Cena za m2:
19 841,27 PLN
Biuro nieruchomości Pure Estates ma przyjemność zaprezentować 3 pokojowe mieszkanie gotowe do wprowadzenia, w dzielnicy Ursus.

Nowoczesne 3-pokojowe mieszkanie po generalnym remoncie 63 m²!


 Mieszkanie zostało całkowicie odświeżone i urządzone w nowoczesnym stylu. Wszystko zostało zaprojektowane przez architekta tak, aby połączyć funkcjonalność z elegancją.

Układ mieszkania:
-Salon z aneksem kuchennym (24 m²)  

Aneks kuchenny na wymiar, wyposażony w nowy sprzęt AGD premium: zmywarka, lodówka w zabudowie, piekarnik, mikrofalówka, płyta indukcyjna i okap.

Sypialnia 1 (10,36 m²) z zabudowaną szafą.

Sypialnia 2 (11,36 m²) z dużym łóżkiem i pojemną szafą.

Przestronna łazienka z pralko-suszarką i wygodnym prysznicem typu walk-in.

Oddzielne WC.

Hol z dużym lustrem i zabudowaną szafą.

Z salonu wyjście na duży, słoneczny balkon z południową ekspozycją

Mieszkanie nie wymaga żadnych dodatkowych nakładów.

Budynek jest ocieplony, z nową elewacją. Położony w głębi osiedla, co zapewnia ciszę i spokój, a jednocześnie bliskość wszystkich udogodnień: przystanek autobusowy 2 minuty pieszo stacja PKP Ursus Północny ok. 5 minut pieszo park 500 m Żabka 50 m, Biedronka 400 m szkoła 1 km, przedszkole 100 m w pobliżu: piekarnia, apteka, restauracje, sklepy, przychodnia, kościół, salony kosmetyczne i fryzjerskie. Bardzo dogodny dojazd do obwodnicy Warszawy. Okolica jest zielona, przyjazna rodzinom i bezpieczna.

Dodatkowo: Miejsce postojowe w garażu podziemnym 45 000 zł
Nieprawidłowy adres E-mail