3 pokoje | Saska Kępa | zieleń | komunikacja

Mieszkanie na sprzedaż
819 000,00 PLN , Pow. 47,75 m2
Drukuj ofertę
Drukuj ofertę
Typ nieruchomości:
Mieszkanie
Powierzchnia:
47,75 m2
Typ transakcji:
sprzedaż
Liczba pokoi:
3
Lokalizacja:
Warszawa Praga-Południe , Saska
Rok budowy:
1960
Piętro:
1 na 3
Numer oferty:
PEMS-205891
Cena za m2:
17 151,83 PLN
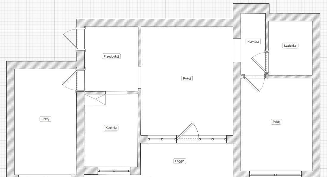
Biuro nieruchomości Pure Estates prezentuje 3-pokojowe mieszkanie w sercu Saskiej Kępy.

Nieruchomość o powierzchni 47,75 m², znajduje się na 1 piętrze w niskim 3 piętrowym bloku z lat 60tych. Budynek po świeżej termoizolacji, również wymienione piony.

Nieruchomość składa się z:
- salon ok. 16 m2 z wyjściem na przestronną loggie 5m2 
- 2 sypialnie ok. 10 m2
- łazienka 3 m2 wyposażona w wannę z szybą prysznicową
- oddzielna kuchnia z oknem ok. 7 m2.

Mieszkanie jest jednostronne, bardzo słoneczne, okna wychodzą na południowy-zachód.
Widok na pełne zieleni podwórko, stare drzewa daje wytchnienie od miejskiego zgiełku. Mieszkanie wyposażone w klimatyzację. 
We wszystkich pomieszczeniach są dębowe podłogi, kilka lat temu została wymieniona instalacja elektryczna. 

Parkowanie:
Miejsce postojowe na parkingu ogrodzonym - możliwość wynajęcia miejsca za 100 zł/miesiąc.

Stan prawny:
Pełna własność z KW. Grunty uregulowane. Przy zakupie można posiłkować się kredytem.

Opłaty:
Czynsz - ok. 1100 zł. - obecnie korzystają 4 osoby.

Lokalizacja i komunikacja:
Miejsce świetnie skomunikowane - szybki i sprawny dojazd do centrum i innych części Warszawy. W pobliżu budynku przystanek autobusowy.
Okolica zapewnia bardzo szeroką ofertę handlowo-usługową. W bliskiej sąsiedztwie znajdziemy liczne sklepy, restauracje i kawiarnie oraz szkoły, przedszkola i żłobki, bazarek.

Serdecznie zapraszam do kontaktu i umówienia prezentacji w dogodnym dla Państwa terminie.


Nieprawidłowy adres E-mail