Autonomia Praska | 2 pokoje | 36,78 m2 | ogródek

Mieszkanie na sprzedaż
673 000,00 PLN , Pow. 36,78 m2
Drukuj ofertę
Drukuj ofertę
Typ nieruchomości:
Mieszkanie
Powierzchnia:
36,78 m2
Typ transakcji:
sprzedaż
Liczba pokoi:
2
Lokalizacja:
Warszawa Praga-Północ Nowa Praga
Rok budowy:
2025
Piętro:
0 na 7
Numer oferty:
PEMS-336233
Cena za m2:
18 297,99 PLN
Biuro nieruchomości Pure Estates ma przyjemność zaprezentować 2-pokojowe mieszkanie z ogródkiem w stanie deweloperskim położone w prestiżowej inwestycji Autonomia Praska. 

BUDYNEK/OSIEDLE
Autonomia Prask to projekt premium od uznanego warszawskiego dewelopera Dantex. Inwestycję cechuje nowoczesna, elegancka architektura oraz wysoki standard części wspólnych. Teren osiedla zagospodarowany zielenią oraz strefami wypoczynkowymi. Inwestycja zaplanowana z zastosowaniem nowoczesnych rozwiązań w zakresie bezpieczeństwa i komfortu mieszkańców. 

Mieszkanie znajduje się na parterze budynku i posiada własny ogródek.

PARAMETRY MIESZKANIA
• Powierzchnia użytkowa: 36,78 m²
• Wysokość pomieszczeń: ok. 278 cm
• Stan: deweloperski
• Piętro: parter
• Ogródek: 34,85 m²

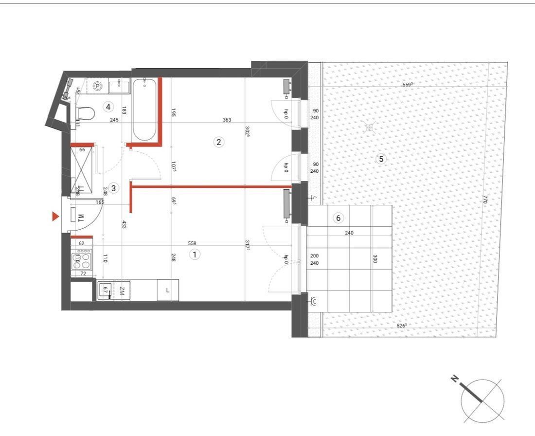
UKŁAD POMIESZCZEŃ (36,78 m²)
1. Salon z aneksem kuchennym: 16,68 m²
2. Sypialnia: 11,66 m²
3. Hol: 3,97 m²
4. Łazienka: 4,47 m²
5. Ogródek: 34,85 m²

OPŁATY
• Czynsz administracyjny: 622 zł

LOKALIZACJA
Mieszkanie położone w sercu Pragi-Północ, w rejonie o bardzo dobrym dostępie do usług, handlu i terenów rekreacyjnych. W bliskiej odległości znajdują się: sklepy, restauracje, placówki edukacyjne oraz miejsca kultury.

KOMUNIKACJA
• Bardzo dobra dostępność komunikacji miejskiej.
• W pobliżu liczne linie tramwajowe i autobusowe zapewniające szybki dojazd do centrum.
• Wygodny dostęp do II linii metra.
• Szybki wyjazd na główne arterie komunikacyjne miasta.


Serdecznie zapraszam do kontaktu i umówienia prezentacji w dogodnym dla Państwa terminie.
Nieprawidłowy adres E-mail