Mokotów | 3 pokoje | do wprowadzenia | taras

Mieszkanie na sprzedaż
1 070 000,00 PLN , Pow. 55,70 m2
Drukuj ofertę
Drukuj ofertę
Typ nieruchomości:
Mieszkanie
Powierzchnia:
55,70 m2
Typ transakcji:
sprzedaż
Liczba pokoi:
3
Lokalizacja:
Warszawa Mokotów , Grupy AK "Krybar"
Rok budowy:
2017
Piętro:
0 na 3
Numer oferty:
PEMS-989656
Cena za m2:
19 210,05 PLN
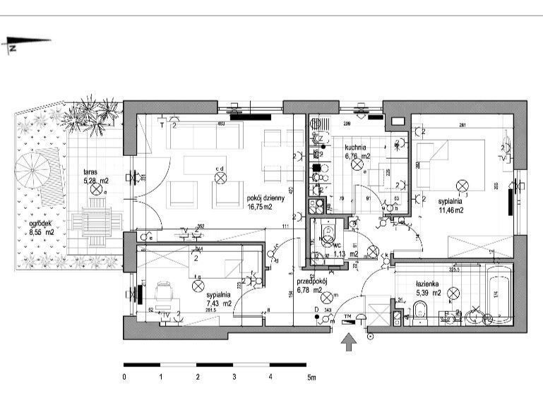
Biuro Nieruchomości Pure Estates ma przyjemność zaprezentować 3-pokojowe nowoczesne mieszkanie na Mokotowie.

Funkcjonalne 3-pokojowe mieszkanie o powierzchni 55,7 m², położone na parterze. Mieści się w apartamentowcu 3-piętrowym z windą z 2017 r. 

Najważniejsze atuty mieszkania:
* Przemyślany układ 3 pokoi - jasny salon, oddzielna kuchnia, komfortowa sypialnia, pokój dziecięcy/gabinet.
* Pomieszczenie gospodarcze 1,13 m².
* Wykończone i gotowe do wprowadzenia.
* Klimatyzacja.
* Dodatkowa przestrzeń do wypoczynku - urządzony taras, zasadzone drzewka.
* Duże okna i świetne doświetlenie.

Atuty osiedla:
* Zielone, zadbane i kameralne otoczenie.
* Plac zabaw - idealne miejsce dla rodzin z dziećmi.
* Spokojne, ciche uliczki, a jednocześnie szybki dostęp do komunikacji, sklepów i terenów rekreacyjnych.
* Blisko do centrum Mokotowa i dobry dojazd do Śródmieścia.
* Dodatkowy parking np. dla gości na terenie osiedla.

Dodatkowe informacje:
Do mieszkania dostępne jest miejsce w garażu podziemnym z szafą garażową - płatne dodatkowo 70 000 zł. Cena podlega negocjacji.
Niski czynsz: 750 zł. Pełna własność z KW - możliwe kredytowanie.

Zachęcam do umówienia prezentacji w dogodnym terminie.


Nieprawidłowy adres E-mail