3 POKOJE | 2x garaż | Słoneczne | Zieleń

Mieszkanie na sprzedaż
799 000,00 PLN , Pow. 54 m2
Drukuj ofertę
Drukuj ofertę
Typ nieruchomości:
Mieszkanie
Powierzchnia:
54 m2
Typ transakcji:
sprzedaż
Liczba pokoi:
3
Lokalizacja:
Warszawa Białołęka , Przejezdna
Rok budowy:
2016
Piętro:
1 na 3
Numer oferty:
PEMS-307238
Cena za m2:
14 796,30 PLN
Biuro nieruchomości Pure Estates ma przyjemność zaprezentować Państwu na sprzedaż 3-pokojowe mieszkanie o powierzchni 54,65 m² znajdującym się przy ul. Przejezdna na Białołęce. 

Apartament jest zlokalizowany na 1. piętrze w niskim budynku z windą, na zamkniętym osiedlu Aura Garden. 

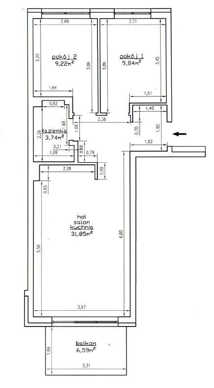
ROZKŁAD:
salon z holem i kuchnią - 31,85 m²
(kuchnia aktualnie oddzielona ścianką, można łatwo wrócić do aneksu)
pokój 1 - 9,84 m²
pokój 2 - 9,28 m²
łazienka z prysznicem - 3,74 m²
balkon - 6,59 m²
Ekspozycja północ-południe, duże przeszklenia w salonie i pokojach zapewniają dużo naturalnego światła i widok na zieleń.

STANDARD:
Mieszkanie w bardzo dobrym stanie, gotowe do zamieszkania od zaraz.
W pełni umeblowane i wyposażone
Sprzęty AGD: lodówka, zmywarka, płyta indukcyjna, piekarnik, okap, pralko-suszarka
Wykończenie z materiałów wysokiej jakości

PARKING:
Możliwość zakupu dwóch miejsc parkingowych w garażu podziemnym - każde płatne dodatkowo 40 000 zł (zakup nie jest obowiązkowy).

OSIEDLE:
osiedle zamknięte, monitorowane, wjazd przez szlaban
zadbana zieleń wokół budynku - opieka ogrodnika
zamknięty plac zabaw tylko dla mieszkańców
nowoczesny budynek z windą
spokojne, kameralne otoczenie

LOKALIZACJA:
Warszawa, Białołęka 
spokojna i zielona okolica, blisko lasów i tras rowerowych
szybki dojazd do metra Kondratowicza i Bródno
w pobliżu:
▫ sklepy (Lewiatan, ogólnospożywcze)
▫ apteka, przychodnia
▫ przedszkola, żłobki, szkoła podstawowa
▫ IKEA, Decathlon, CH Targówek

INFORMACJE DODATKOWE:
czynsz: ok. 750 zł (z zaliczkami na media i funduszem remontowym)
pełna własność z księgą wieczystą - możliwość zakupu na kredyt
mieszkanie dostępne od zaraz. 

Serdecznie zapraszam do kontaktu i umówienia prezentacji w dogodnym dla Państwa terminie.
Nieprawidłowy adres E-mail